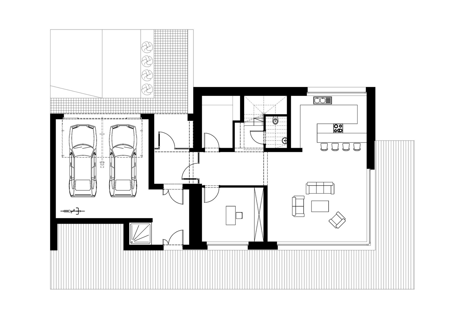
PROJEKT DOMU JEDNORODZINNEGO

lokalizacja: KOMORNIKI
faza projektu: KONCEPCYJNY
powierzchnia użytkowa: 258 M2 
inwestor: PRYWATNY

KONCEPCJA

Ciepła cześć budynku zawierajaca funkcje mieszkalne

Chłodna cześć budynku zawierajaca funkcje pomocnicze

Przesuniecie kalenicy ze wzgldeów funkcjomalnych

Architektura