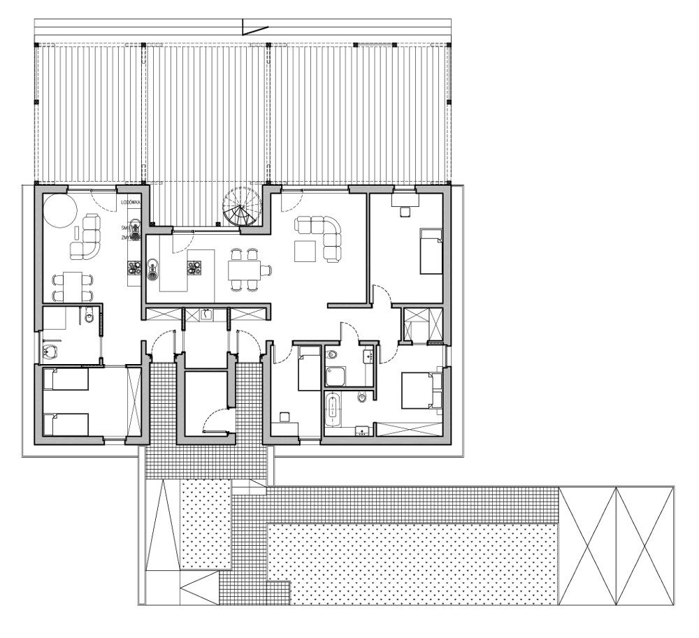
PROJEKT DOMU JEDNORODZINNEGO DWULOKALOWEGO

lokalizacja: MUROWANA GOŚLINA
faza projektu: W TRAKCIE REALIZACJI
powierzchnia użytkowa: 258 M2 
inwestor: PRYWATNY

KONCEPCJA

wyjściowa bryła budynku_pomniejszony okap_obrócenei dachu_zmniejszenie proporcji dachu