PROJEKT DOMU JEDNORODZINNEGO
W ZABUDOWIE BLIŹNIACZEJ

lokalizacja: KLESZCZEWO 
faza projektu: KONCEPCYJNY
powierzchnia użytkowakazdego z lokali: 105 M2 
inwestor: PRYWATNY

KONCEPCJA 

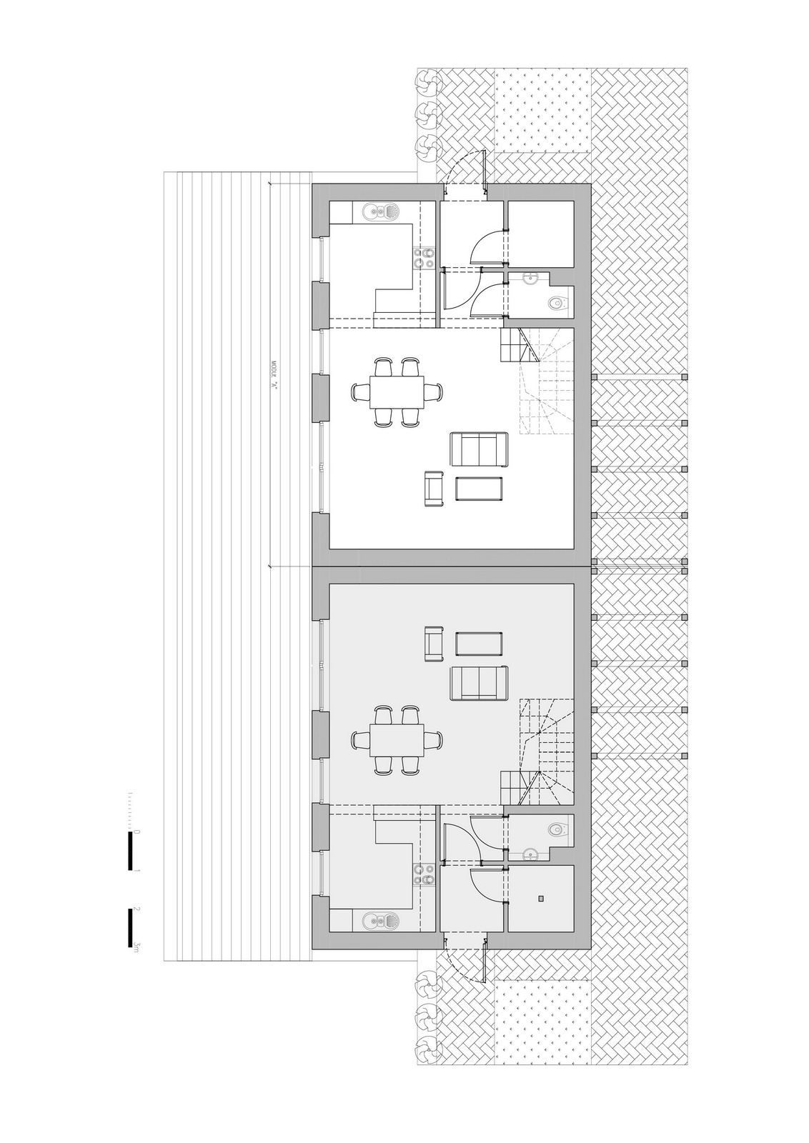
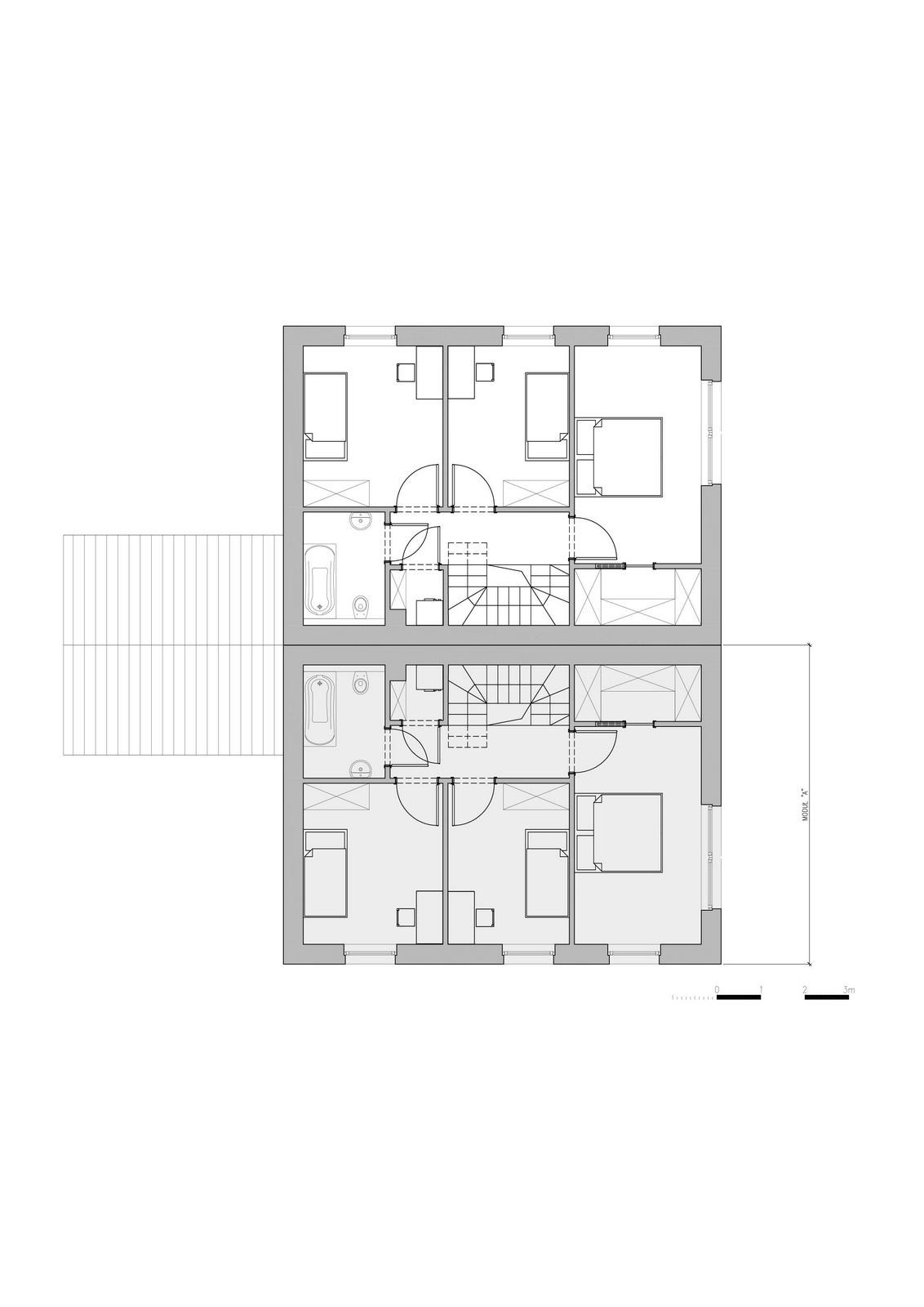
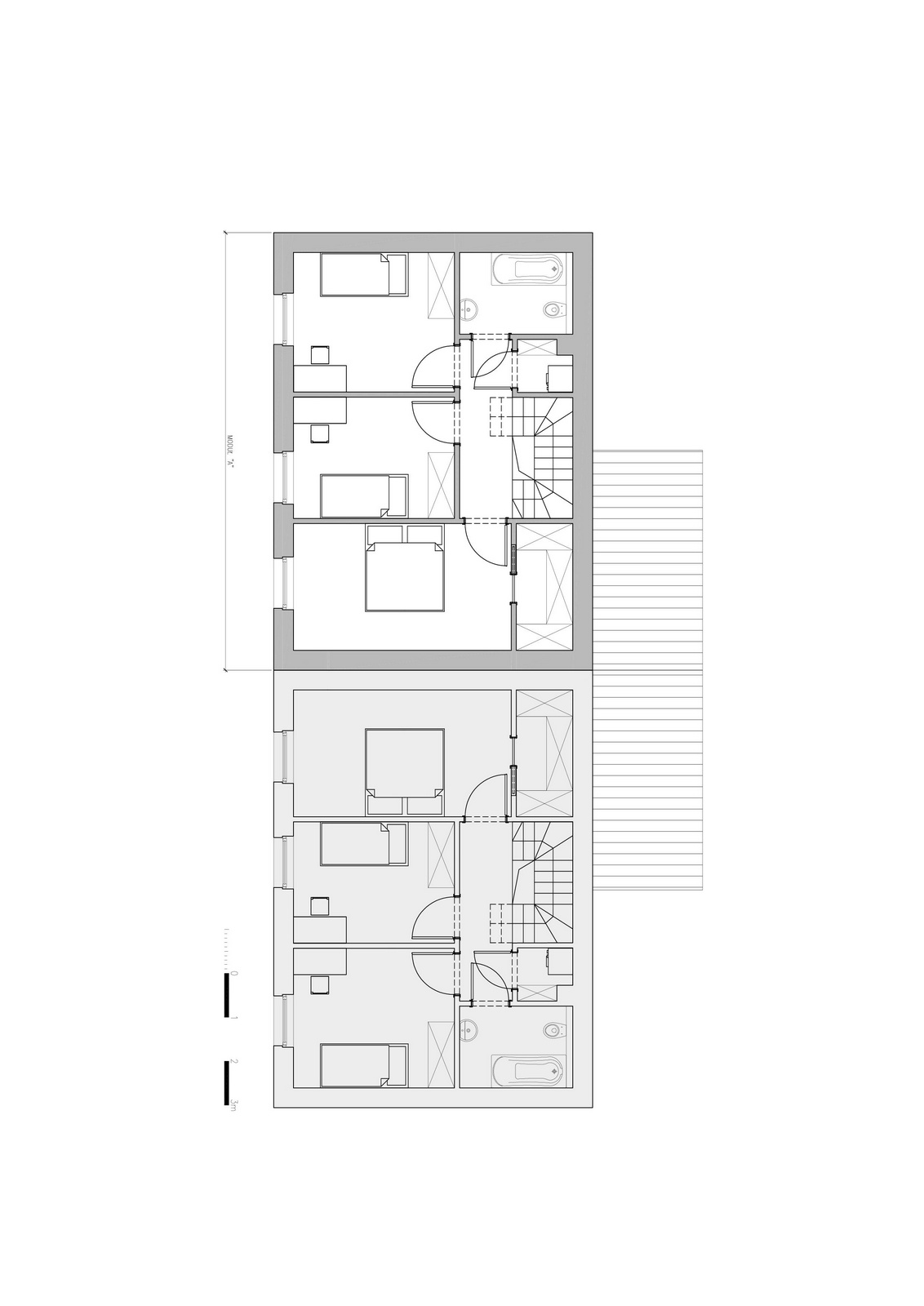
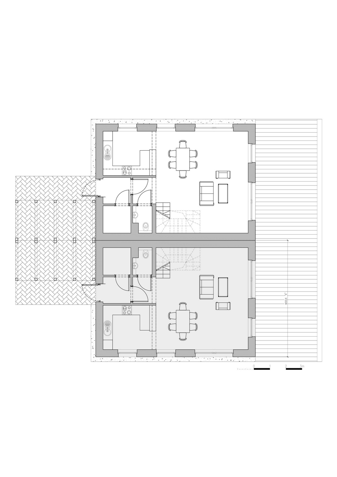
DOM MIĘDZY DROGAMI

 jest bliźniakiem usytuowanym na nieruchomości posiadającej dostęp do dróg z dwóch przeciwległych stron. Nieruchomość zlokalizowana jest na terenie podmiejskim w jednym z dwóch szeregów działek powstałych z podziału ziemi rolnej. Nieruchomość położona jest między dwoma drogami – drogą gminną oraz drogą wewnętrzną, zapewniającą dojazd do działek w drugiej linii zabudowy. Pierwotnie dojazd miał  być zapewniony z drogi wewnętrznej. Takie usytuowanie obiektu powodowało niekorzystny podział nieruchomości na dwa wąskie i długie ogrody. Jako priorytetowy cel projektowy wyznaczyliśmy sobie zapewnienie optymalizacji kształtu ogrodów, ale także lepsze ich nasłonecznienie. Takie podejście do projektowania zabudowy, ma na celu stworzenie wygodnej przestrzeni mieszkaniowej dla jej przyszłych użytkowników. Po uwzględnieniu lokalizacji działki  oraz jej orientacji  względem stron świata, zaproponowano obrócenie modułu o 90° i uczynienie atutu z lokalizacji działki między drogami.  Zaprojektowano moduł, który może być odbity symetrycznie wzdłuż dłuższego lub krótszego boku. Projekt modułu powoduje, że taka operacja jest neutralna dla estetyki i walorów użytkowych. Funkcje domu rozdzielano na dwie kondygnacje – na parterze powstała strefa dzienna z kuchnią i salonem, na piętrze sypialnie z łazienką. Bryła domu jest prostopadłościanem, przykrytym asymetrycznym dachem.  Architektonicznie dom uzupełniono o drewnianą elewację z przesuwnymi żaluzjami, dach i jedna ze ścian pokryta jest dachówką ceramiczną. 

WERSJA WYJŚCIOWA